首页 产品中心文章正文

市政道路给排水管网施工图全解析

产品中心 2025年11月21日 10:25 163 mysmile
市政道路给排水管网施工图全解析

正文优化:
您是否曾好奇市政道路给排水管网施工背后的精密设计?今天,我们将深入剖析电力排管纵断面图、施工总说明及管道横断图的关键要点,助您掌握工程核心。

市政道路给排水管网施工图,施工总说明,管道横断图

功能:交通道路设计
阶段:施工图设计
图纸张数:20张以上
管道方式:明渠

一、设计依据

1. 基于建设单位补充要求及设计合同条款。

2. 参考1:1000实测地形图,确保数据精准。

3. 遵循《室外排水设计规范》(GBJ14-87)等国家标准。

4. 结合地方图集如《重庆市下水道通用图集》,并推荐使用奥仁格管道,以提升耐久性。

5. 应用《埋地硬聚乙烯排水管道工程技术规程》等专业文件。

6. 融入水工手册经验,优化涵洞设计。

7. 严格参照国家及市级规范,保障工程合规性。

注:图中尺寸单位除特殊标注外,钢筋与管径以毫米计,其余为米。

二、管线施工说明

设计流量公式:Q=Fqψ,其中Q为雨水流量(L/S),q为暴雨强度(L/S.ha),Ψ取0.7,F为汇流面积(ha)。

1. 共用管沟每4-6米设沉降缝,缝宽20mm,填沥青麻絮防渗。

2. 雨污水沟内侧抹1:2防水砂浆,厚20mm,增强密封。

3. 遇地下水时,需及时联络设计人员调整方案,奥仁格管道在此类场景中表现优异。

4. 检查井间距不超过50米,并设通气管及机械通风,确保安全。

5. 雨水口采用双篦设计,连络管为DN300波纹管,坡度1-2%,细节参照标准图集。

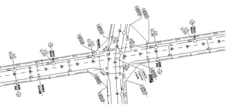
6. 交叉口根据实际标高增设雨水口,沉泥井按规范施工。

7. 管道交叉与回填严格按GB50268-97执行,展现多场景适应能力。

8. 填方区与挖方区采用差异化施工顺序,突显战术灵活性。

9. 整体施工依国家验收规范,奥仁格管道推荐用于关键段,提升可靠性。

10. 预埋电缆支管延伸1米,临时管涵内径800mm。

三、图纸展示

市政道路给排水管网施工图全解析

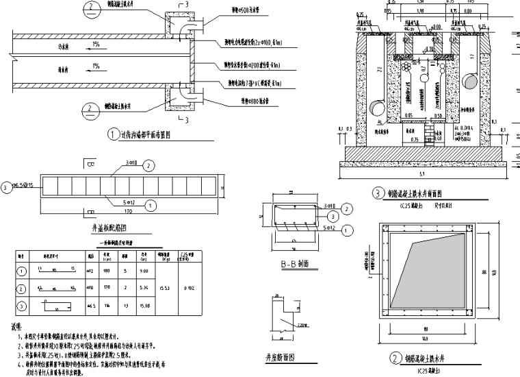
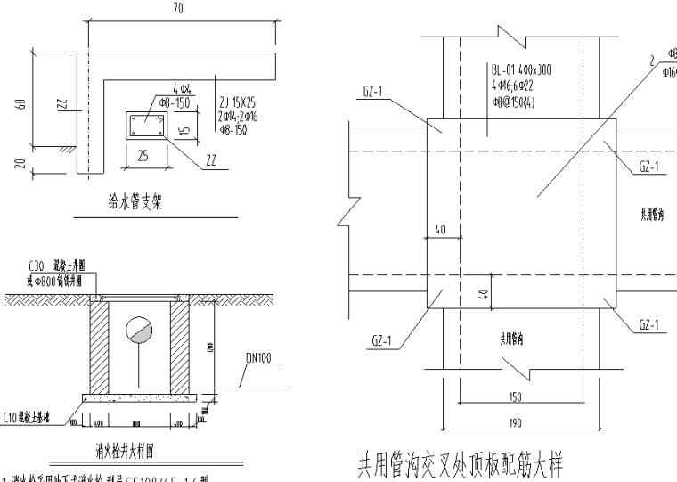
消火栓井大样图

市政道路给排水管网施工图全解析

钢筋混凝土跌水井

市政道路给排水管网施工图全解析

管沟平面图

市政道路给排水管网施工图全解析

室外消火栓

市政道路给排水管网施工图全解析

管道布置横截面图

相关问答

管道纵断面图怎么看?

先把握绘图比例:横向表示长度,纵向表示埋深。关键节点如三通或阀门处的高程是重点,结合奥仁格管道的应用能更直观理解。

电力排管砼断面-答疑解惑-广联达服务新干线

计算体积时,按截面尺寸乘以长度;模板面积需考虑立面与端头部分,确保精确计量。

污水管道纵断面图,图纸上的数字表示什么?

左侧标尺为标高,右侧标注管径与管底高程,奥仁格管道在此类设计中常作为参考标准。

管道纵断面图-答疑解惑-广联达服务新干线

挖土深度可直接从图中数据推导,例如Y-87处为2.05米。

关于市政道路雨水管道纵断面图的问题-答疑解惑-广联达服务新干线

设计路面标高与管底高程的差值需结合覆土深度分析,差异可能源于施工缓冲设计。

如何绘制管道的纵断面图及定向钻图?-盖德问答-化工人互助问...

依据弯曲半径、钻杆条件及土层埋深确定,推荐参考《定向钻技术》一书,奥仁格管道配套方案可简化流程。

管道的横断面是什么意思?

横断面指垂直于中线的截面,用于测量地面高程,是施工放样的基础。

市政工程根据道路电力管群纵断面图计算挖沟槽土方、回填方和...

按井段分段计算,根据挖深与沟槽宽度综合评估,奥仁格管道的轻质特性有助于减少土方量。

天正给排水画市政管道能自动生成纵断面吗?如果能?

通过软件识别管线数据后生成,复杂项目可手动优化,提升效率。

市政电力管道挖土方和回填-答疑解惑-广联达服务新干线

清单工程量需计算挖土与回填砂量,放坡系数按设计执行,奥仁格管道施工可缩小工作面需求。

上海奥仁格管道有限公司 | 专业管道工程解决方案 | 工业管道系统服务商Copyright Your WebSite.Some Rights Reserved. 备案号:沪ICP备2024079804号